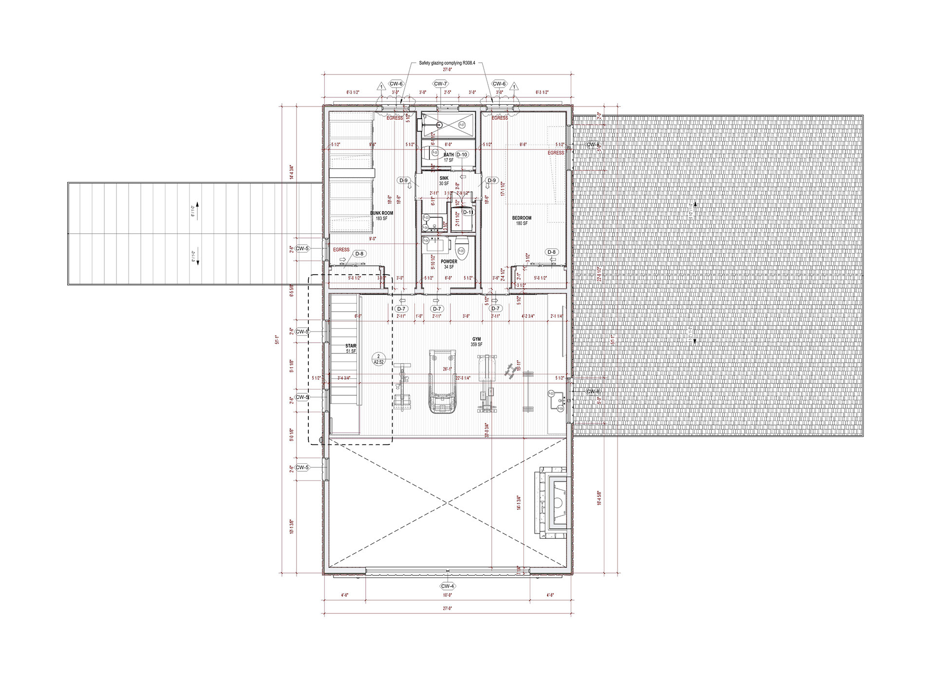
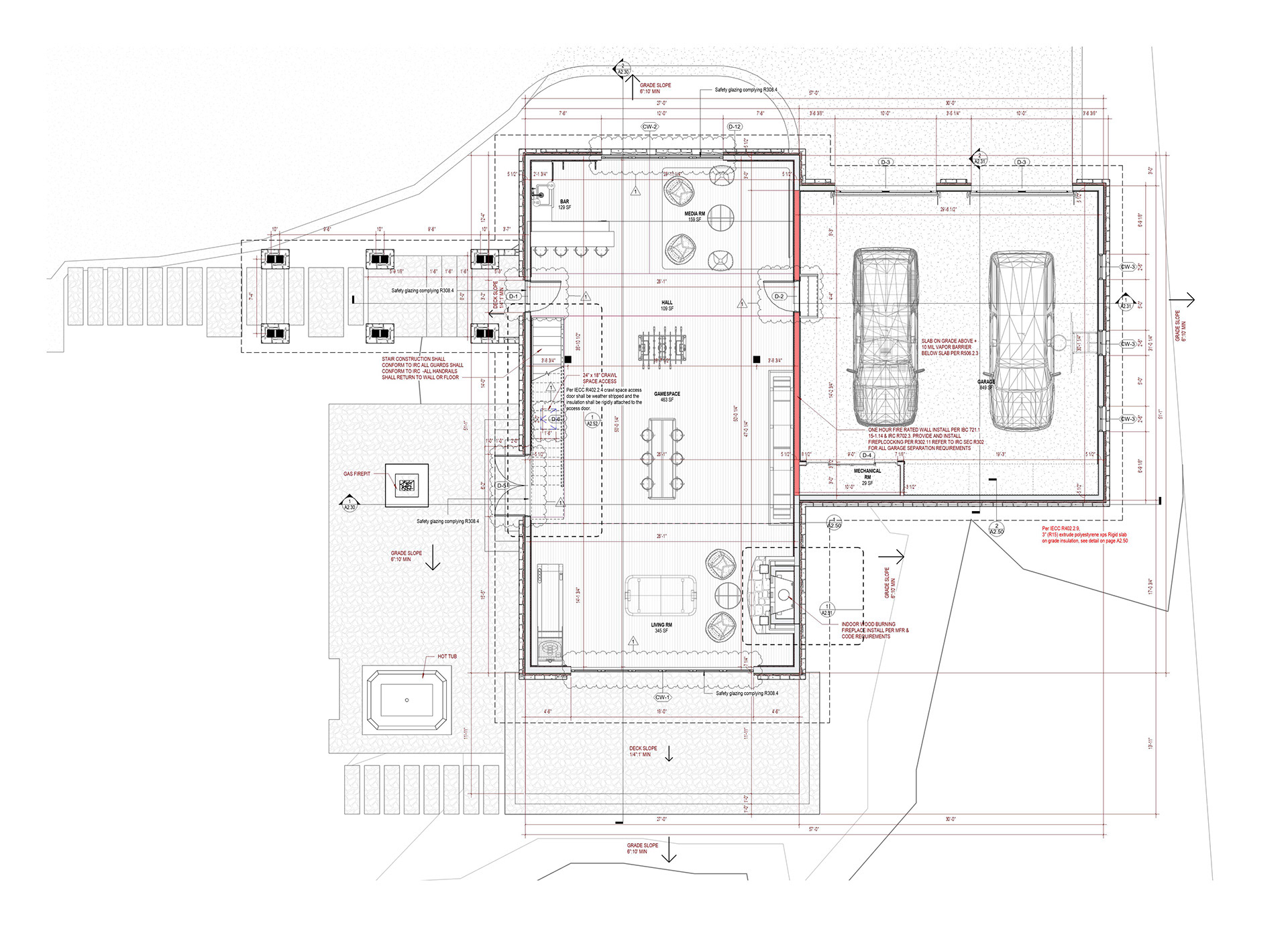
This project involved the design and documentation of a barn addition to an existing residence located in a private community in Wyoming. The process began with the modeling of the as-built conditions of the main house, based on scanned, hand-drawn plans provided by the client.
Using this reference, we developed a new barn structure adjacent to the house, carefully following the original architectural language to ensure visual and formal coherence, as if both elements had been designed together.
I was responsible for the entire BIM process, from existing condition modeling to conceptual design, permit documentation, and construction drawings. Due to the strict design guidelines of the private neighborhood and specific county requirements, the project underwent several review rounds before final approval. It is currently in its final construction phase.

Some content has been adapted to protect the confidentiality of the original project. Full documentation available upon request for professional review.

You may also like

Back to Top