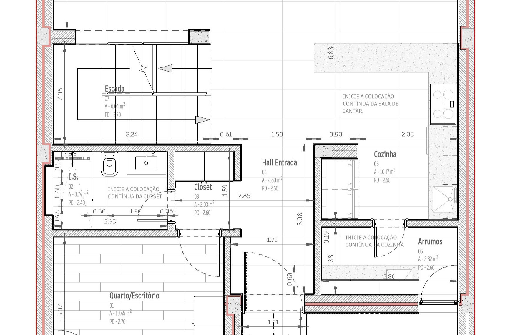
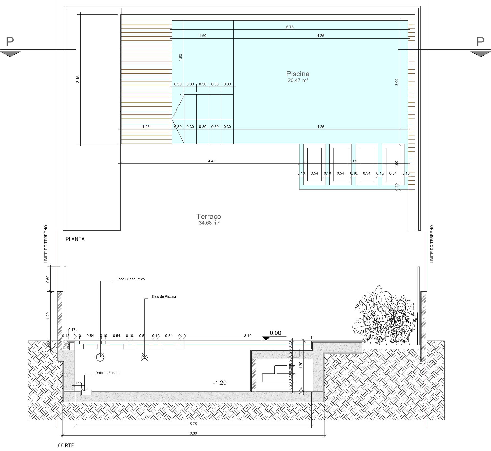
This project consisted of 28 residential units developed across two floors, with multiple housing typologies. JHcadOutsourcing was hired by a Portuguese architecture studio to assist in the BIM development and construction documentation phase.
The client had already completed the schematic design and structural framework. Our first step was to conduct an on-site survey of the existing structure, followed by the translation of their CAD documentation into a clean, accurate Revit model.
We worked on resolving technical junctions, verifying inconsistencies, and producing a complete construction set with all the information required for proper on-site execution. This project showcased our ability to integrate into an external design team and contribute precise BIM-based deliverables aligned with European standards.

Some content has been adapted to protect the confidentiality of the original project. Full documentation available upon request for professional review.

You may also like

Back to Top