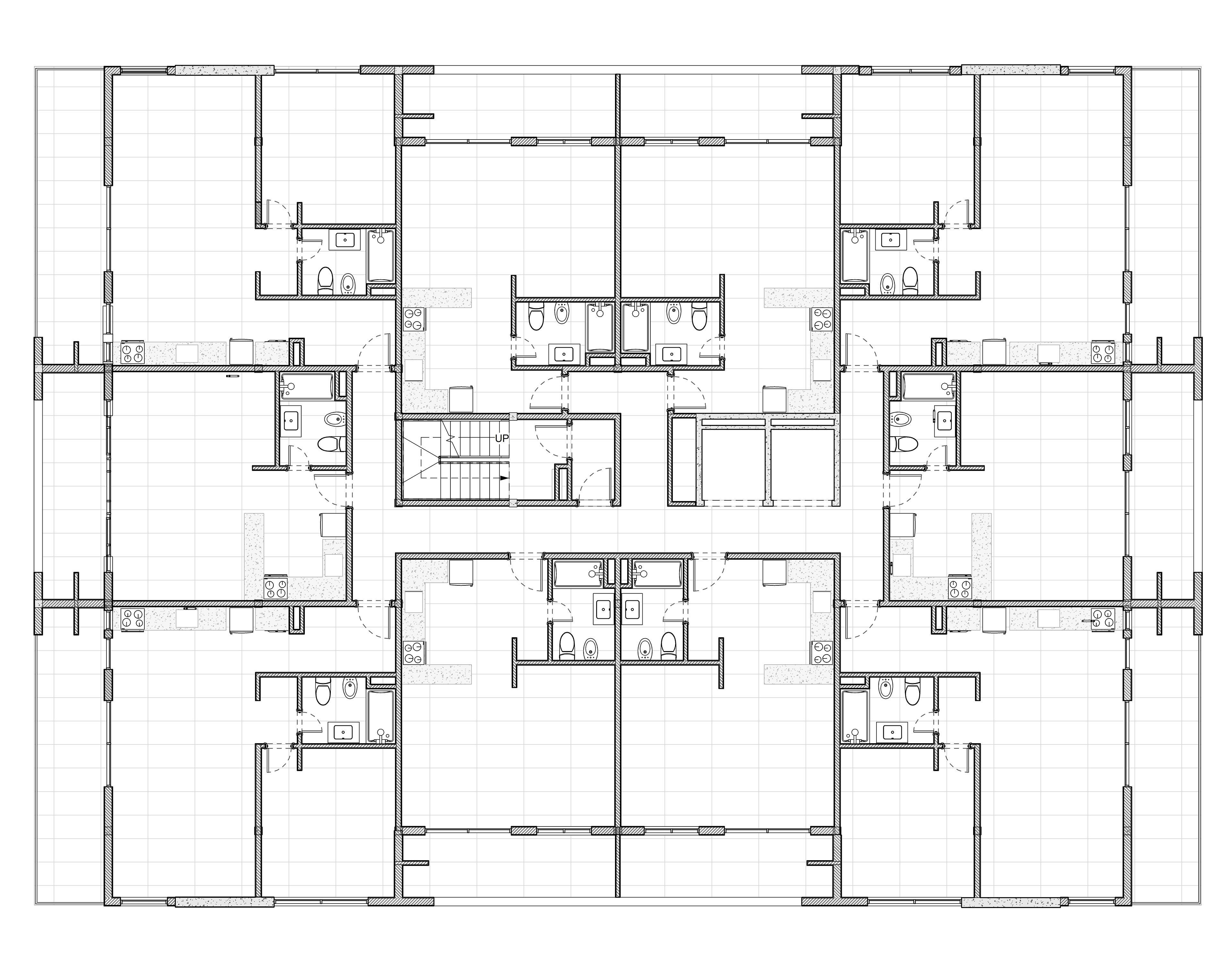
This project began when a client contacted me as an independent professional to assess the potential of a 140m x 70m plot of land on the outskirts of Buenos Aires. I took on a dual role as both architect and project promoter, leading the initial feasibility analysis, zoning research, financial planning, and market study to define the project strategy.
Once the groundwork was established, I developed the architectural design and carried out the entire BIM modeling process for a residential building of 90 units. This project allowed me to combine my knowledge in architecture, real estate and marketing, offering a comprehensive approach from concept to visualization.
It was a valuable experience where I was able to bring together technical skills, strategic thinking and entrepreneurial vision within the framework of a real-world development opportunity.

Some content has been adapted to protect the confidentiality of the original project. Full documentation available upon request for professional review.

You may also like

Back to Top